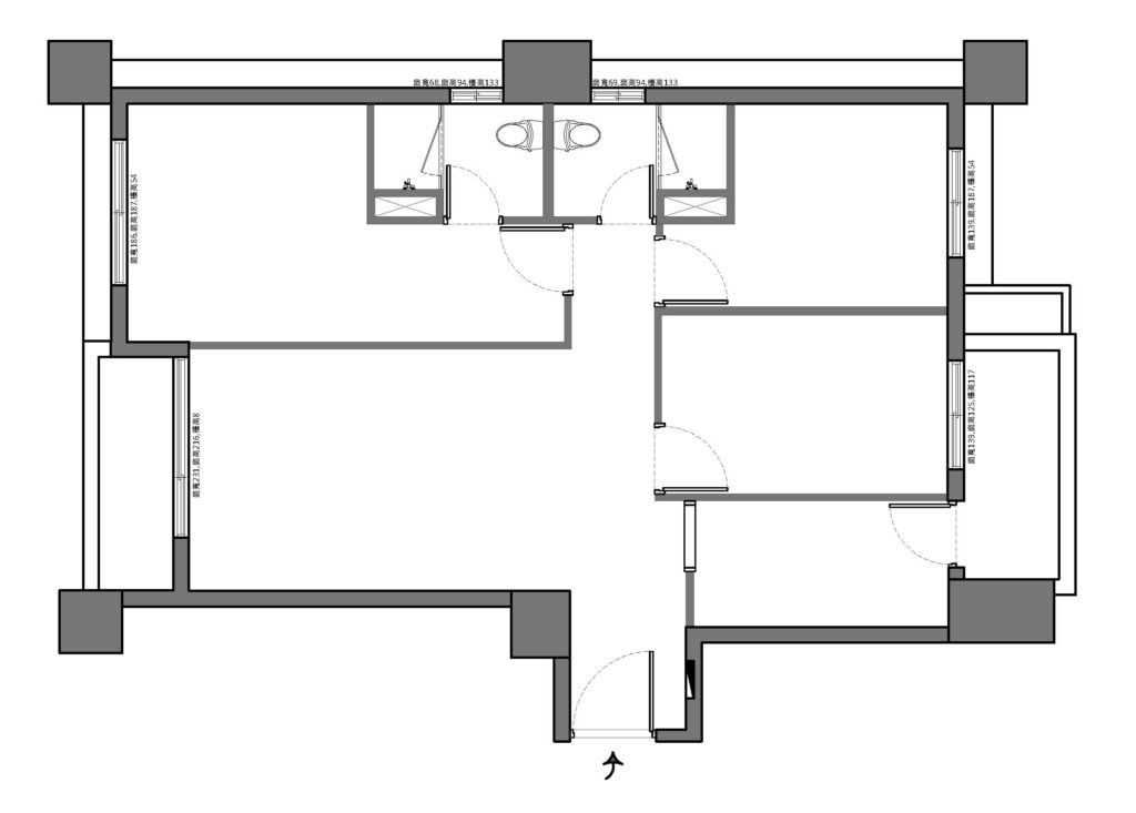
• 格局:2 房、2廳、2 衛、2陽台
  • 桃園八德 | 新屋

悠然原始圖

Before

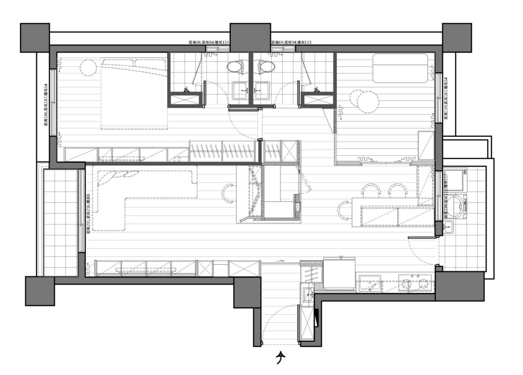
悠然平面圖

After

分享作品集

Facebook
Twitter
Pinterest

// 喜歡我們的風格嗎?看更多作品 //