跳至主要內容
加入 Line 由專人為您服務
mumoon-line
首頁
作品
簡約休閒
優雅細緻
內斂沈穩
裝潢知識
裝修前須知
毛孩子宅
莯月專欄
About 莯月
流程
首頁
作品
簡約休閒
優雅細緻
內斂沈穩
裝潢知識
裝修前須知
毛孩子宅
莯月專欄
About 莯月
流程
簡約休閒
惜愛
28.5 坪 / 2 房 2 廳
二房一廳
,
客餐廳
,
廚房
,
新成屋
,
日式北歐風
,
書房
,
機能住宅
,
毛孩子宅
,
毛孩家庭
,
玄關
,
臥室
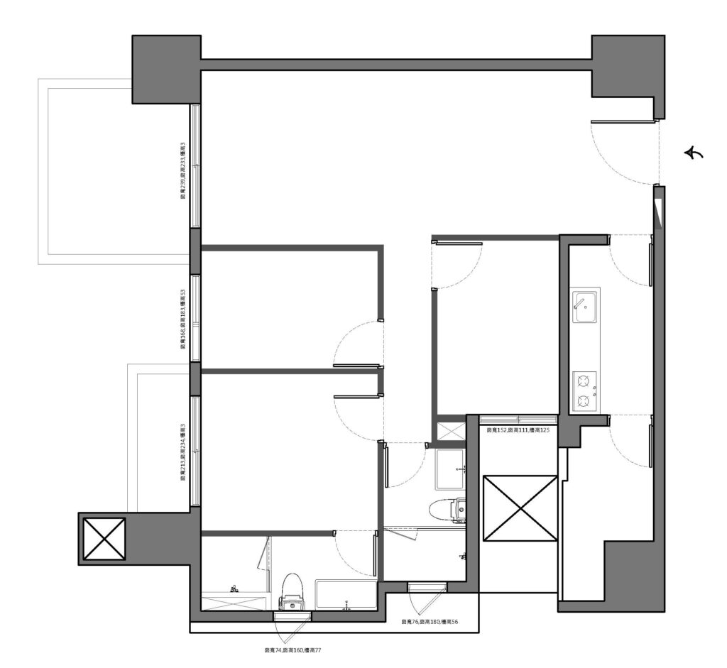
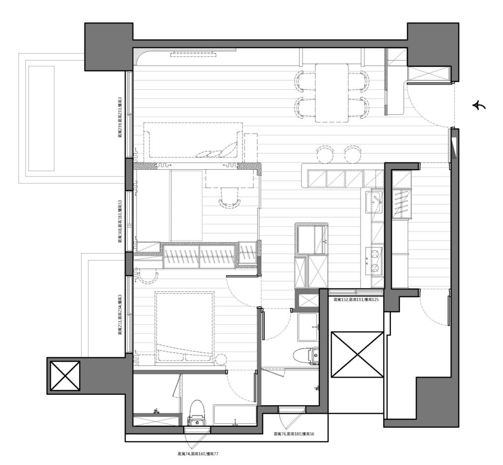
格局:2房、2廳、2衛、前後陽台
高雄鼓山 | 新屋
Before
After
分享作品集
Facebook
Twitter
Pinterest
←上一則
慢漫
下一則→
圓緣
// 喜歡我們的風格嗎?看更多作品 //
晨曦
18.8 坪 / 2 房 2 廳
嶼香
33.5 坪 / 3 + 1 房 2 廳