• 格局:3房、2廳、2衛、廚房、前後陽台
  • 台北士林 | 新屋

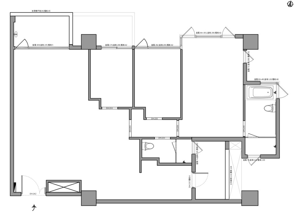
意居平面圖檔-原始圖_莯月室內設計

Before

意居平面圖檔_莯月室內設計

After

意居_玄關
意居_玄關
意居_玄關
意居_餐廳
意居_廚房
意居_廚房
意居_主臥
意居_主臥
意居_主臥

莯月室內設計_意居_玄關

3D效果圖

莯月室內設計_意居_客餐廳_美式古典精緻優雅

分享作品集

Facebook
Twitter
Pinterest

// 喜歡我們的風格嗎?看更多作品 //