旭日

12 坪 / 1房 1廳 1衛
  • 格局:1 房、1廳、1 衛、1陽台
  • 台北中山 | 新屋

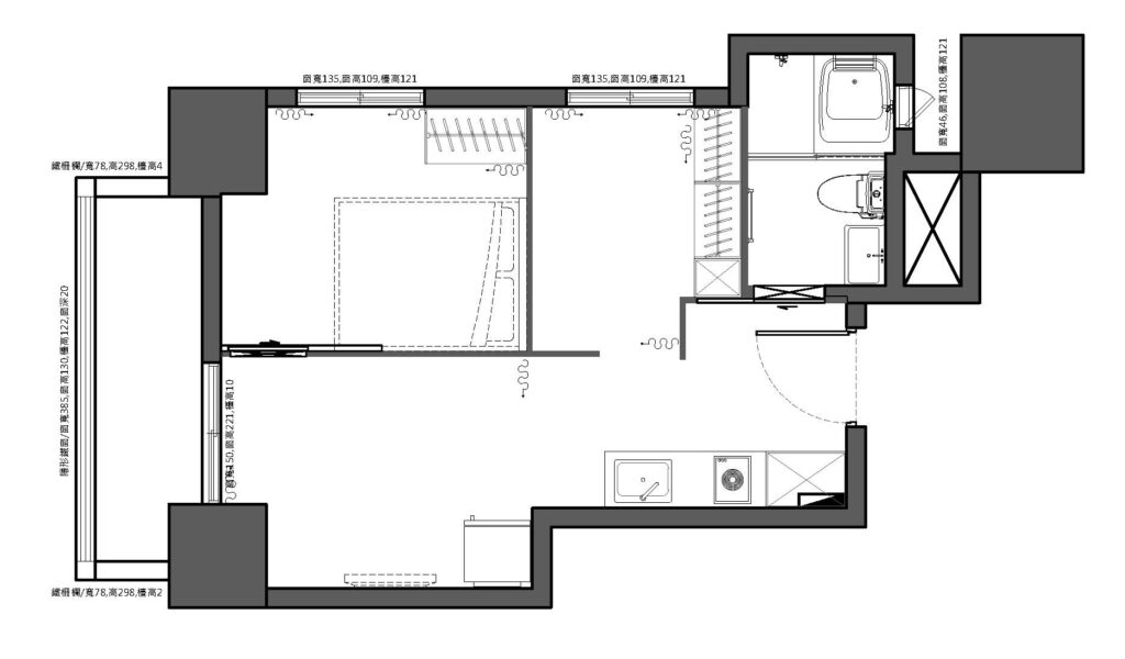
旭日原始圖

Before

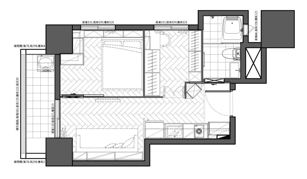
旭日平面圖

After

3D效果圖

(此案例為精緻小宅既有硬體裝修翻修,改變成溫暖居家氛圍。)

實景圖

旭日-客餐廳
旭日-客餐廳
旭日-客餐廳
旭日-客餐廳
旭日-客餐廳
旭日-客餐廳
旭日-客餐廳

// 喜歡我們的風格嗎?看更多作品 //