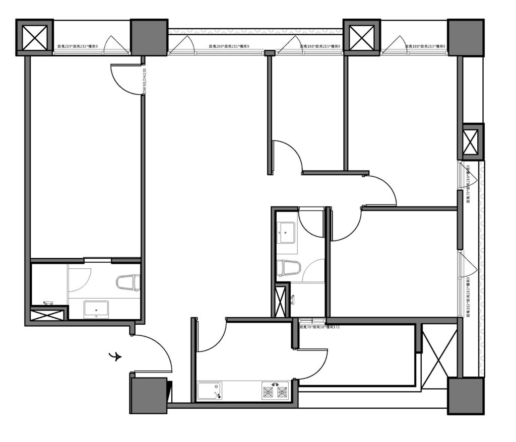
- 格局:3房、2廳、1書房、2衛、前後陽台
- 新北新店 | 新屋

Before

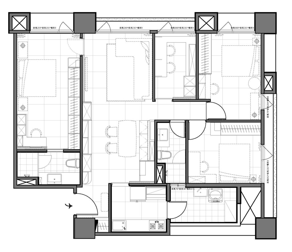
After















機能收納規劃
❍ 衛浴〖浴櫃收納設計〗
浴櫃規劃依新建案來說,局部新屋建案會贈送浴櫃使用。若可訂製的條件下,可以一併將污衣籃、衛生紙、其他衛浴備品收納需求,提前與設計師分享討論,可將需求整合至空間使用,例如抽屜式、開門式、層板…等等。

3D示意效果圖






Before

After















❍ 衛浴〖浴櫃收納設計〗
浴櫃規劃依新建案來說,局部新屋建案會贈送浴櫃使用。若可訂製的條件下,可以一併將污衣籃、衛生紙、其他衛浴備品收納需求,提前與設計師分享討論,可將需求整合至空間使用,例如抽屜式、開門式、層板…等等。





